Pays et langue
  • France (FR)
  • Deutschland (DE)
  • Belgique (BE)
  • Nederland (NL)
  • Danmark (DK)
  • Lëtzebuerg (LU)
  • Schweiz (CH)
  • Österreich (AT)
  • International
  • Langue
  • Recherche
  • Page d'accueil - caniveaux et rétention BIRCO
  • Caniveaux de drainage
    • TP-Génie civil
      • BIRCOsir petites dimensions
      • BIRCOsir grandes dimensions
      • BIRCOsir Drainage des voies ferrées
      • BIRCOcaniveaux à fente type RIKI
      • BIRCOprofil
    • Protection des eaux souterraines
      • BIRCOsir grandes dimensions
      • BIRCOmassiv
      • BIRCOmax-i
      • BIRCOprotect
      • BIRCOsolid Caniveaux à grilles
      • BIRCOport
      • BIRCOchimie
    • Urbanisme, paysagisme
      • BIRCOplus
      • BIRCOslim®
      • BIRCOlight avec feuillures en acier
      • BIRCOlight avec feuillures en fonte
      • BIRCOlight® triloc
      • BIRCOlight Drainage de façades
      • BIRCOparksafe®
      • BIRCOcornières à fente
      • Caniveaux en acier BIRCOtopline®
      • BIRCOprofil
  • Drainage ponctuel
    • TP-Génie civil
      • BIRCOsir Drainage ponctuel
    • Protection des eaux souterraines
      • BIRCOchimie Drainage ponctuel
    • Urbanisme, paysagisme
      • BIRCOplus drainage ponctuel
      • BIRCOlight® Drainage ponctuel avec cadre en fonte
  • Gestion de l'eau
    • Traitement
      • BIRCOpur®
      • BIRCOprime® evo
      • BIRCOhydropoint®
      • BIRCOprime®
      • BIRCOhydroshark
    • Infiltration
      • BIRCOpur
    • Rétention
      • BIRCOmax-i
  • Canaux de distribution
    • Produits
      • BIRCOcanal passage de gaines
      • BIRCOcanal électro-mobilité
  • Design
    • Aperçu de la gamme Design
      • Aperçu de la gamme Design
      • BIRCOcolor
      • BIRCO Recouvrements fonte
      • Recouvrements en métal galvanisé BIRCO
      • Recouvrements en acier inoxydable BIRCO
  • Gestion de projets
    • Gestion de projets
      • Aperçu de la Gestion de projets
      • Gestion des eaux pluviales
      • BIRCOqualité
      • Découpes, carottages et finitions
      • Spécificités des produits
      • BIRCOeasyclean
      • Revêtement zinc-aluminium-magnésium
      • BIRCOprojet
    • Tout sur la Gestion de projet
      • Les solutions type-I de BIRCO
      • Logistique
    • Domaines d'application
      • Projets de référence
  • Société
    • Société
      • A propos de BIRCO
      • Histoire et valeurs
      • Offres d'emploi
      • Succursales
    • Actualités
      • Conférences et salons
      • Communiqués de presse
    • Contact
      • Vos interlocuteurs
      • Formulaire de contact
  • Téléchargements
    • Téléchargements
      • Fiches techniques
      • Tarif public
      • Catalogues et brochures
      • Instructions de jointoiement
      • Manuels d'entretien
      • BIRCOeasyclean
      • Textes d'appel d'offres
      • Certificats
      • Déclarations de performances
    • Dessins techniques
      • BIRCOsir - petites dimensions
      • BIRCOsir - grandes dimensions
      • BIRCOcaniveaux à fente type RIKI
      • BIRCOlight
      • BIRCOmax-i
    • Instructions de pose
      • BIRCOsir
      • BIRCOcaniveaux à fente type RIKI
      • BIRCOprofil
      • BIRCOmassiv
      • BIRCOmax-i® / BIRCOprime® / BIRCOprime® evo
      • BIRCOprotect
      • BIRCOsolid®
      • BIRCOchimie
      • BIRCOplus
      • BIRCOslim®
      • BIRCOlight® / BIRCOlight® triloc
      • BIRCOlight Drainage de façade
      • BIRCOcornières à fente
      • BIRCOtopline®
      • BIRCOparksafe®
      • BIRCOpur® NW 320
      • BIRCOhydropoint
      • BIRCOsed
      • BIRCOhydroshark
      • BIRCOcanal
  • Classes de sollicitation selon EN 1433
  • Trouver un interlocuteur
  • Contact
Instructions de pose
Service

Instructions de pose

  1. Vous êtes ici:
    1. Téléchargements
    2. Instructions de pose
    3. BIRCOhydroshark

Téléchargements

  • Fiches techniques
  • Tarif public
  • Catalogues et brochures
  • Instructions de jointoiement
  • Manuels d'entretien
  • BIRCOeasyclean
  • Textes d'appel d'offres
  • Certificats
  • Déclarations de performances

Dessins techniques

  • BIRCOsir - petites dimensions
  • BIRCOsir - grandes dimensions
  • BIRCOcaniveaux à fente type RIKI
  • BIRCOlight
  • BIRCOmax-i

Instructions de pose

  • BIRCOsir
  • BIRCOcaniveaux à fente type RIKI
  • BIRCOprofil
  • BIRCOmassiv
  • BIRCOmax-i® / BIRCOprime® / BIRCOprime® evo
  • BIRCOprotect
  • BIRCOsolid®
  • BIRCOchimie
  • BIRCOplus
  • BIRCOslim®
  • BIRCOlight® / BIRCOlight® triloc
  • BIRCOlight Drainage de façade
  • BIRCOcornières à fente
  • BIRCOtopline®
  • BIRCOparksafe®
  • BIRCOpur® NW 320
  • BIRCOhydropoint
  • BIRCOsed
  • BIRCOhydroshark
  • BIRCOcanal

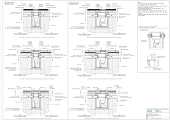
Instructions de pose BIRCOhydroshark en .pdf et .dwg


BIRCOhydroshark 1000 et 1500
BIRCOhydroshark 1000 et 1500

[PDF, 1,06 Mo ]

Télécharger
dwg

BIRCOhydroshark 1000 et 1500

BIRCOcontactdirect03 67 10 62 26

du lundi au jeudi de 8h30 à 17h00
le vendredi de 8h30 à 14h30

BIRCOsocial info@birco.de
  • facebook
  • YouTube
  • LinkedIn
  • Instagram
  • Classes de sollicitation
  • À propos de BIRCO
  • Paramètres des cookies
  • Conditions générales de ventes
  • Sitemap
  • Mentions légales
  • Protection des données